Отличная 2-х комнатная квартира!
| Стоимость | 2 990 000 |
|---|---|
| Ремонт | Евро |
| Балкон | Балкон |
| Доля в квартире | Нет |
| Комнат в квартире | 2 |
| Площадь, кв.м. | 53.9 |
| Жилая площадь | 30.9 |
| Площадь кухни, кв.м. | 9.4 |
| Этаж | 7 |
| Этажность | 9 |
| Материал стен | панельный |
| Регион страны | Вологодская область |
|---|---|
| Район | городской округ Череповец |
| Населенный пункт | Череповец |
| Район города | Зашекснинский |
| Улица | улица Ленинградская |
| Номер дома | 19/20 |
2 -х комнатная квартира с отличным ремонтом в самом центре Зашекснинского района!!!!
Квартира находится в современном районе с развитой инфраструктурой. В шаговой доступности школы, детские сады, торговые центры ТЦ "ИЮНЬ", аквапарк "Радужный", Макси, ТЦ "Северо-западный".
Рядом остановки общественного транспорта.
Во дворе дома находится парковка для а/м, благоустроенный двор: детская и баскетбольная площадки.
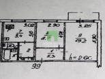
Квартира общей площадью 53,9 кв.м. Комнаты 19,2 и 11,7 кв.м, кухня площадью 9,4 кв.м. Выход на балкон из зала, большей площадью.
В квартире сделан хороший, качественный евро-ремонт. Во всей квартире вставлены новые евро-окна, заменена вся электропроводка.В комнатах современные обои, на полу линолеум отличного качества, натяжные потолки. Раздельный сан.узел. В ванной комнате кафель, новая сантехника, трубы поменяны, установлены счетчики. Проведено кабельное телевидение.
Планировка удобная для комфортного расположения мебели: квадратная кухня, является мечтой любой хозяйки, в которой остаётся кухонный гарнитур, так же остаётся большой шкаф в прихожей.
Чистая продажа,2 взрослых собственника.Квартира без долгов и обременений!!! Это позволит быстро и качественно провести сделку! Любые способы расчёта: ипотека, материнский сертификат, военный сертификат. Если у вас есть ещё своя квартира, то можем рассмотреть обмен.
Понравился вариант? Звоните!



































