продам трехкомнатную квартиру
Обзор№ - 5658
| Стоимость | 3 250 000 |
|---|---|
| Ремонт | Требуется ремонт |
| Балкон | Балкон + лоджия |
| Доля в квартире | Нет |
| Онлайн показ | могу провести |
| Статус Недвижимости Авито | Квартира |
| Комнат в квартире | 3 |
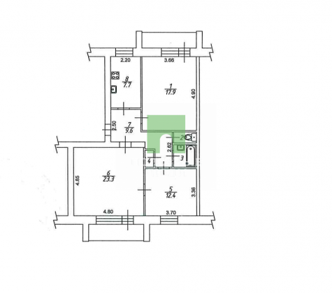
| Площадь, кв.м. | 75 |
| Жилая площадь | 53.6 |
| Площадь кухни, кв.м. | 7.7 |
| Этаж | 1 |
| Этажность | 5 |
| Материал стен | Кирпич |
Адрес
| Регион страны | Вологодская область |
|---|---|
| Район | Городской округ Вологда |
| Населенный пункт | Вологда |
| Улица | улица Пугачева |
| Номер дома | 40 |
В избранное продам трехкомнатную квартиру
Продаю просторную трехкомнатную квартиру на комфортном первом этаже кирпичного дома. Площадь квартиры 76 кв.м. Три изолированные правильной формы комнаты. Кухня 8 м2. Санузел раздельный. Две лоджии. Имеется темная комната, которую можно оборудовать под гардеробную. В квартире сделан частичный ремонт: произведена замена окон на ПВХ, труб, установлены счетчики. Отличная звукоизоляция. Тихий, спокойный двор. В шаговой доступности вся инфраструктура. Звоните! Записывайтесь на просмотр!























